Gebouw voor gemengd gebruik
€ 750.000

Sint-Katharinastraat 12, 2870 Puurs
    • delen

Omschrijving Ref.: 7339603

Commercieel pand


Bent u op zoek naar een pand met tal van mogelijkheden dan is deze unieke eigendom op 13 are het bekijken waard.

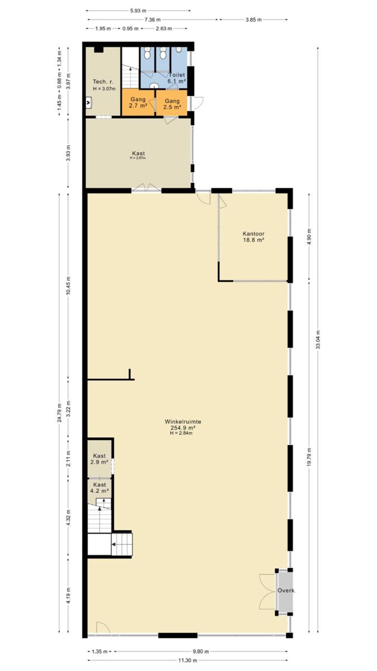
Indeling: ca. 300 m² winkel, showroom 250 m², burelen 48 m², receptie 45 m², magazijn 300 m², garage/atelier, appartement ingericht 100 m².
Parking: privéparking achter het gebouw.

Vergunningen en Bestemming: Bestemd voor winkel, magazijn, opslagplaats, wonen, en kleinhandel. Bijkomende vergunning voor drogisterij en groot- & kleinhandel in verf en decoratie.

Extra troeven: gevels volledig gerenoveerd in 2013 – modern en verzorgd voorkomen.

Mis deze opportuniteit niet – een zeldzame combinatie van ruimte, ligging en functionaliteit!

Contacteer ons vandaag nog voor meer info of een bezichtiging.


Uw contact

Vragen over deze eigendom ref: 7339603
contact

Details van het pand

Financieel

Prijs
€ 750.000,00
Onder BTW stelsel
Nee
Waarde constructie
€ 550.000,00
Terrein waarde
€ 400.000,00
Beschikbaarheid
Vanaf akte
Beschikbaarheid datum
01 April 2026
Kadastraal inkomen
€ 2.503,00
Min. verhuurprijs
€ 4.000,00
Gemeenschappelijke kosten
€ 0,00/maand
Vrij beroep mogelijk
Ja

Ligging

Buurt
Centraal, residentiële wijk
School nabij
Ja
Winkels nabij
Ja
Openbaar vervoer nabij
Ja
Autosnelweg nabij
Ja

Gebouw

Oppervlakte
900,00 m²
Aantal gevels
3
Bouwjaar
1968
Renovatiejaar
2013
Staat
Goede staat
Aantal verdiepingen
1
Oppervlakte hoofdgebouw
600 m²
Gevelbreedte
12,00 m
Type dak
Platdak

Parkeermogelijkheden

Garage
10
Parkings buiten
Ja
Parkings binnen
Ja

Indeling

Keuken
20,00 m², geïnstalleerd
Bureau
Ja
Toiletten
3
Wasplaats
Ja

Comfort

Handicapvriendelijk
Nee
Lift
Nee
Zwembad
Nee

Energie

EPC
EPC unieke code
202404130012204316NR1
Dubbele beglazing
Ja
Ramen
Pvc
Elektriciteitskeuring
Nee
Type verwarming
Stookolie cv

Technieken

Elektriciteit
Ja
Riolering
Ja
Water
Ja

Stedenbouw

Bestemming
Woongebied
Bouwvergunning
Ja
Verkavelingsvergunning
Nee
Terrein type
Woongebied
Voorkooprecht
Nee
Asbestinventarisattest
Ja
Dagvaarding
Nee - geen rechterlijke herstelmaatregel of bestuurlijke maatregel opgelegd
G-score
B
P-score
B
Vonnissen
Nee
Servitude
Ja

Meer info over deze eigendom

Bedankt voor je bericht, we contacteren je zo spoedig mogelijk.
Er was een probleem bij het versturen van het formulier, gelieve opnieuw te proberen.
U moet de algemene voorwaarden aanvaarden om dit bericht te kunnen verzenden
(*) Gelieve de verplichte velden in te vullen.